Сайт Ставрополя
 
  
Сообщения
Загрузка
Новости Ставрополя и Ставропольского края
  • СВО
  • Все
  • Происшествия
  • Общество
  • Политика
  • Экономика
  • Владелец земельного участка оспаривает компенсацию в 192 млн рублей от мэрии Ставрополя

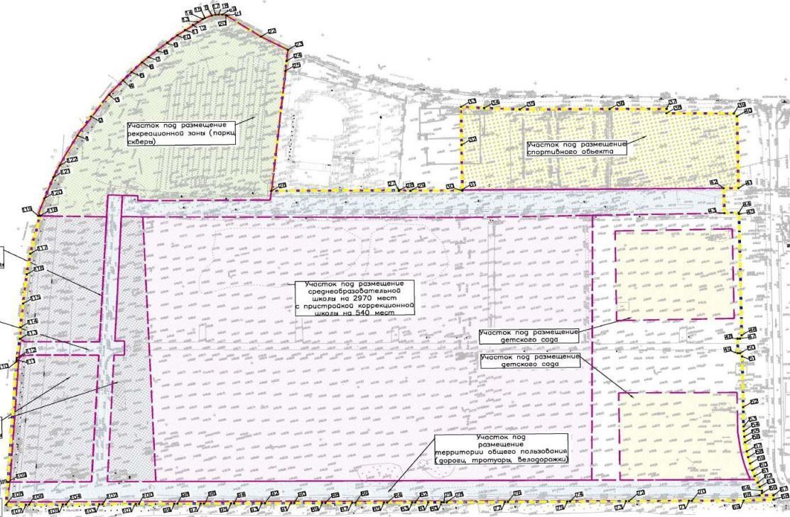
    В Арбитражном суде Ставрополя продолжается разбирательство по делу об изъятии земельного надела площадью более 47 тыс. кв. метров, расположенного между улицами Рогожникова, Западный обход, Павла Буравцева и проспектом Российским.

    Администрация города предлагает выплатить собственнику участка Дмитрию Гаевому компенсацию в размере 192 млн рублей. Представитель мэрии утверждает, что согласно данным муниципального контроля территория пустует.

    Однако защита Гаевого не согласна с предложенной суммой. «400 тысяч рублей за сотку земли несоизмеримо рыночной стоимости», — заявил адвокат предпринимателя. Юрист ходатайствует о проведении судебно-оценочной экспертизы и представил документы, подтверждающие наличие коммуникаций на участке.

    «Инженерные сети проведены за счёт частных инвестиций, что может стать основанием для перерасчёта стоимости надела», — подчеркнул представитель ответчика.

    Следующее заседание по делу назначено на 18 июня 2025 года.

    На изымаемой территории рядом с диагностическим центром планируется масштабное строительство современной школы на 2970 мест с пристройкой для коррекционной школы на 540 мест, двух детских садов, спортивного объекта и сквера для отдыха жителей.

    Владелец земельного участка оспаривает компенсацию в 192 млн рублей от мэрии Ставрополя
    Фото: телеграм-канал зампредседателя Ставропольской городской Думы Куриленко
    22 мая 2025, четверг, 16:11Общество
    Главное сейчасза неделю
    Лента новостей вчера
    17:58Свет отключат в части Георгиевска 22 и 23 апреля
    16:42Проект Железноводска отметили на премии «Служение»
    15:56В Ессентуках продлили отопительный сезон
    15:00Два чиновника из Ессентуков предстанут перед судом
    13:59Дело о попытке хищения нефти расследуют на Ставрополье
    12:16Более 100 млн рублей направят на ремонт 10 домов в Ставрополе
    11:14Почти 6,5 тыс. пачек безакцизных сигарет изъяли на
    Ставрополье 
    11:00Тепловоз столкнулся с автомобилем в Ставропольском крае
    09:57Лебеди вернулись в Центральный парк Ставрополя
    09:41Две легковушки столкнулись лоб в лоб в Светлограде
    09:16На Ставрополье водитель погиб при съезде авто в канал
    20 апреля 2026
    20:00Двое юных жителей Ставрополья пойдут под суд за дропперство
    Двое юных жителей Ставрополья пойдут под суд за дропперство
    19:11Готовивших теракт в Пятигорске арестовали на два месяца
    18:48Сергей Карякин принял участие в открытии шахматного клуба в Ставрополе
    18:11Прокуратура добивается возврата 8 га земли на КМВ
    17:47Международная историческая школа стартовала в Ставрополе
    17:08Начался ремонт главной улицы Железноводска
    16:31В Изобильном задержали участников
    потасовки 
    В Изобильном задержали участников потасовки
    15:18Сирены завоют на Ставрополье 22 апреля
    14:58На Ставрополье газовики поздравили воспитанников детских домов с Пасхой
    14:47Жители Ставрополья стали чаще общаться по телефону
    14:14Депутаты Ставрополья предложили создать единый механизм реабилитации и абилитации детей-инвалидов
    12:25Исследование TelecomDaily: Билайн — лидер по качеству голосовой связи в Ставрополе
    11:40Жительница Пятигорска предстанет перед судом за незаконное получение выплат на сумму 850 тыс. рублей
    11:19В Ставрополе на бизнес-конференции обсудили лучшие стратегии продвижения бизнеса в регионе и точки роста в текущих условиях
    10:44Ставрополь заключил соглашения о туристическом сотрудничестве с тремя городами России
    Ставрополь заключил соглашения о туристическом сотрудничестве с тремя городами России
    10:43Заморозки вновь прогнозируют на Ставрополье
    10:10Гражданка Германии пыталась совершить теракт в Пятигорске по заданию
    Киева 
     
    09:45Капремонт электросетей в двух домах Минеральных Вод обошёлся более чем в миллион рублей
    09:23Ребенок и двое взрослых получили травмы в аварии на Ставрополье
    Ребенок и двое взрослых получили травмы в аварии на Ставрополье
    09:00Где получить высшее образование в сфере ИТ в Ставрополе и стать востребованным на рынке труда сразу после окончания университета?
    08:31В Ставрополе более 70 будущих первоклассников показали свои знания на олимпиаде «Умники и Умницы»
    Архив новостей
    Среда
    Сегодня
    +3°...+8°
    Облачно
    Ощущается как +4°
    Ветер «З» 3-13 м/с
    Давление 713 мм
    Влажность 91%
    Следите за обновлениями
    Telegram
    VK
    MAX
    OK
    Дзен
    RSS
    Приложение
    iOS
    Android